
WSS-571可動外螺紋萬向抽芯式雙金屬溫度計簡介
雙金屬溫度計是用于測量中、低溫的現場檢測儀表,它具有易讀數,安全可靠,使用壽命長等優點,上海自動化儀表三廠生產的WSS-571可動外螺紋萬向抽芯式雙金屬溫度計可以直接測量工業生產過程中-60℃~600℃范圍內的液體、氣體和蒸汽等介質的溫度。
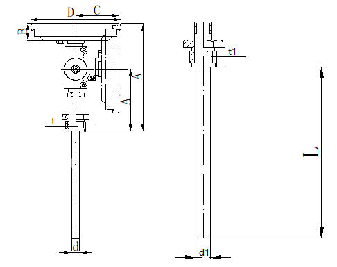
WSS-571可動外螺紋萬向抽芯式雙金屬溫度計主要技術參數
◆測量范圍:-60~600℃
◆精度等級: 1.5級(可以做成1.0級)
◆標度盤公稱直徑:150mm
◆插入深度:L=60~1800mm
◆保護管直徑:d=Φ8、Φ10(尾管長度60~1250mm)
◆保護管材質:不銹鋼304,321或其它
◆安裝螺紋:M27*2其它請注明
◆響應時間:≤60S
◆使用環境溫度:室內-25~55℃;室外-40~85℃
◆相對濕度:5~100%
◆防護等級:IP65
◆執行標準 JB/T8803-1998
雙金屬溫度計工作原理
雙金屬溫度計是利用兩種不同金屬的膨脹系數不同的原理而工作的。將雙金屬片繞制成螺旋管狀的一端被固定,另一自由端與指針連接,隨著溫度的變化而轉動,并帶動指針在表盤上顯示對應的溫度。
雙金屬溫度計使用選型

選型舉例:
WSS-501 表示表盤直徑Φ150mm的可動外螺紋連接,軸向型雙金屬溫度計
WSS-511 表示表盤直徑Φ150mm的可動外螺紋連接,徑向型雙金屬溫度計
WSS-571 表示表盤直徑Φ150mm的可動外螺紋連接,萬向型抽芯式雙金屬溫度計
WSS-581 表示表盤直徑Φ150mm的可動外螺紋連接,萬向型雙金屬溫度計
雙金屬溫度計安裝圖片
WSS-571可動外螺紋萬向抽芯式雙金屬溫度計
D=163,A=169,A'=115,B=25,C=63
t為M10*1 d=6mm
t1為M27*2或根據需要 L=60-1800mm



客服1